Geschiedenis van kerk en gemeente

Voor de reformatie

Het is vrijwel zeker dat de huidige kerk nog ongeveer op dezelfde plaats staat als de eerste kapel, die door de parochie van Lekkerkerk in 1455 werd gebouwd en door diens pastoor werd bediend.
De kapel werd in 1492 vergroot en na toestemming van de Bisschop van Utrecht tot parochiekerk verheven.
Uit “informatie op de verpondingen van 1514” (zie “25 eeuwen Alblasserwaard” door M.W.Schakel) blijkt dat de parochie in die tijd werd bediend door pastoor Joost Janszoon.
Nieuw-Lekkerland, dat 2 jaar daarvoor voor een kwart door de Geldersen werd verbrand, had toen 60 huizen en 275 inwoners.
In 1567 schijnt Nieuw-Lekkerland Jan Jansz. als pastoor gehad te hebben, die ook de kerk van Elshout bediende. Hij werd in 1575 in Oudewater vermoord.

Lees meer

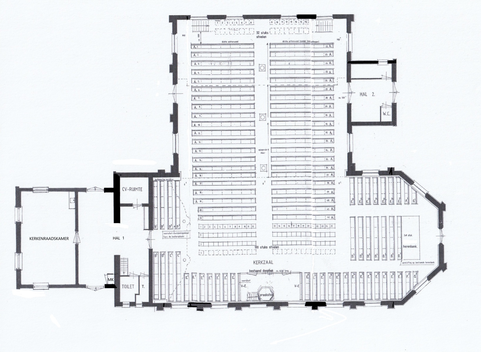
Foto-9b-plattegrond-1994-heden

Afbeelding 14 van 18

Het Orgel

Het kerkgebouw aan de Lekdijk is waarschijnlijk het derde dat op deze plaats staat. Het eerste, een kapel, dateerde van 1455. In 1495 werd de kapel vergroot en tot parochiekerk verheven. In 1575 is de kerk voor een groot gedeelte afgebrand en pas in 1646 hersteld. Deze kerk was in de eerste helft van de 19e eeuw weer aan vervanging toe.

Lees meer

Doopboog

De smeedijzeren doopboog met drie koperen sierknoppen op het doophek is afkomstig uit de vorige kerk.
De doopboog is vermoedelijk gemaakt in de tweede helft van de 17e eeuw.

Lees meer

Voorlezersstandaard

Voorlezersstandaard met kandelaars (2e helft 17e eeuw)
De eiken voorlezersstandaard en de twee gedraaide koperen kandelaars op het doophek zijn afkomstig uit de vorige kerk.

Lees meer

Doophek

Het doophek zou zijn gemaakt in de 3e kwart van de 17e eeuw. Mogelijk is het het reeds gemaakt bij de bouw van de vorige kerk in 1646.

Lees meer

Preekstoel

De preekstoel met klankbord en ruggeschot met vleugels zou zijn gemaakt in de 3e kwart van de 17e eeuw. Mogelijk zijn zij reeds gemaakt bij de herbouw van de vorige kerk in 1646.

Lees meer

Naamlijst van predikanten vanaf 1616 die Nieuw-Lekkerland gediend hebben.

Lees meer

Een nieuwe kerk

Al spoedig bleek dat het schip, waarin toen gekerkt werd, ook niet al te best meer was, zodat er een aanzienlijke reparatie nodig was. Verder lag de vloer van de kerk ‘enige voeten lager dan de kruin van de dijk, waardoor de uitoefening van de openbare godsdienst meer dan eenmaal verhinderd werd door invloeijing en het in de kerk zo vochtig was dat de matten van de niet lang geleden ingebrachte stoelen bijna allen moesten vernieuwd worden’.

Lees meer

Eerste kerkuitbreiding

Vanwege een tekort aan zitplaatsen werd de kerk in 1966/67 aan de noordzijde uitgebreid.

 Tweede kerkuitbreiding

Ditzelfde probleem deed zich 25 jaar later weer voor. Opnieuw werden uitbreidingsplannen gemaakt wat uiteindelijk in 1994 resulteerde in een nieuwe uitbreiding aan de noordzijde waarmee de huidige toestand ontstond. De uitbreiding van 1966/67 werd hierbij geheel gesloopt.